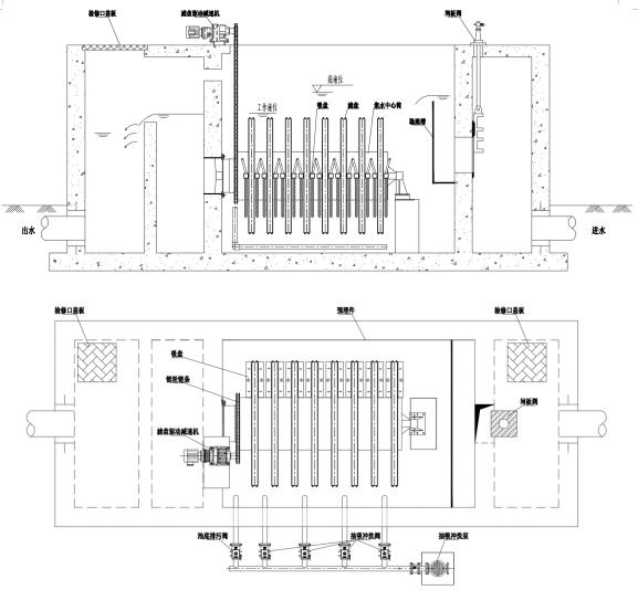
工作原理
外進里出式轉盤過濾器由一系列水平安裝的旋轉過濾盤組成,每個過濾轉盤由以偶數的扇形過濾板組合而成,轉盤上裝有可方便拆卸的濾布,濾布材質為纖維,濾布的過濾孔徑為10um。
纖維轉盤濾池的運行狀態包括:過濾、反沖洗、排泥狀態。
(1)過濾
污水重力流進入濾池,濾池中設有布水堰。濾布采用全淹沒式,污水通過濾布外側進入,過濾液通過中空管收集,重力流通過出水堰排出濾池。整個過程為連續式。
(2)清洗
過濾中部分污泥吸附于濾布外側,逐漸形成污泥層。隨著濾布上污泥的積聚,濾布過濾阻力增加,濾池水位逐漸升高。通過壓力傳感器監測池內液位變化。當該池內液位到達清洗設定
(高水位)時,PLC即可啟動反抽吸泵,開始清洗過程。清洗時,濾池可連續過濾。
過濾期間,過濾轉盤處于靜態,有利于污泥的池底沉積。清洗期間,過濾轉盤以1轉/2分鐘的速度旋轉。抽吸泵負壓抽吸濾布表面,吸除濾布上積聚的污泥顆粒,過濾轉盤內的水自里向外被同時抽吸,并對濾布起反清洗作用。瞬時沖洗面積僅占全過濾轉盤面積的1%左右。反沖洗過程為間歇。
清洗時,2個濾盤為一組,通過自動切換抽吸泵管道上的電動閥控制,纖維轉盤濾池一個完整的清洗過程中各組的清洗交替進行,其間抽吸泵的工作是連續的。當進水水質突然之間惡化,池內液位迅速上升到反洗液位,清洗時同時啟動所有反沖洗泵,可同時對幾組過濾轉盤進行反沖洗,直至反沖洗周期恢復正常。
(3)排泥系統
纖維轉盤濾池的過濾轉盤下設有斗形池底,以利于池底污泥的收集。污泥池底沉積減少了濾布上的污泥量,可延長過濾時間,減少反洗水量。經過一設定的時間段,PLC啟動排泥泵,通過池底穿孔排泥管將污泥回流至廠區排水系統。其中,排泥間隔時間及排泥歷時可以調整。



設備組成
濾池:為方形池,根據用戶需要可采用鋼混凝土結構或碳鋼箱體、不銹鋼箱體。
濾盤:纖維濾布及塑料骨架組成。
反洗裝置:清洗抽吸泵及帶動濾盤轉動的減速機和鏈輪傳動機構。
排泥裝置:濾盤底部集泥便于污泥的沉淀及收集排放。
| 名稱 | |||
| 處理流量 | 15m3/h | 25m3/h | 40m3/h |
| 濾布直徑 | 1000mm | 1600mm | 2000mm |
| 濾盤數量 | 2-8 盤 | 2-10 盤 | 2-10 盤 |
| 過濾面積 | 1.7m2/單盤 | 2.5m2/單盤 | 4.5m2/單盤 |
| 濾速 | 8-15m | 8-15m | 8-15m |
| 進水 SS | ≤40mg/L | ≤40mg/L | ≤40mg/L |
| 出水 SS | ≤10mg/L | ≤10mg/L | ≤10mg/L |
| 濾盤骨架材質 | 增強工程塑料 | 增強工程塑料 | 增強工程塑料 |
| 濾布材質 | 纖維濾布 | 纖維濾布 | 纖維濾布 |
| 集水中心筒材質 | 不銹鋼 | 不銹鋼 | 不銹鋼 |
| 濾池箱體材質 | 碳鋼、不銹鋼 | 碳鋼、不銹鋼 | 碳鋼、不銹鋼 |
| 驅動功率 | 0.37 kW | 0.37 kW | 0.37 kW |
| 抽吸清洗泵功率 | 2.2 kW | 2.2 kW | 2.2 kW |
| 清洗流量 | 25m3/h | 25m3/h | 25m3/h |
| 清洗周期 | 0-300min | 0-300min | 0-300min |
| 清洗時間 | 2min/兩盤 | 2min/兩盤 | 2min/兩盤 |
| 水頭損失 | 250mm | 250mm | 300mm |
| 過濾形式 | 重力過濾 | 重力過濾 | 重力過濾 |
| 外形尺寸 | 3550×1260×1750 | 4800×1800×2500 | 6000×2310×3000 |
*.對于更大的流量、不同水質的選型,使用方式及其他技術參數請咨詢本公司,本公司有權對型號及參數如修改,不另行通知。
水泥池式技術參數:
| 名稱 | |||||
| 處理流量 | 15m3/h/單盤 | 25m3/h/單盤 | 40m3/h/單盤 | 65m3/h/單盤 | 100m3/h/單盤 |
| 濾盤直徑 | 1000mm | 1600mm | 2000mm | 2500mm | 3000mm |
| 濾盤數量 | 2-8 pcs | 2-10 pcs | 2-10 pcs | 2-12 pcs | 2-12 pcs |
| 過濾面積 | 1.7m2/單盤 | 2.5m2/單盤 | 4.5m2/單盤 | 7.5m2/單盤 | 12.0m2/單盤 |
| 濾速 | 8-15m | 8-15m | 8-15m | 8-15m | 8-15m |
| 進水 SS | ≤40mg/L | ≤40mg/L | ≤40mg/L | ≤40mg/L | ≤40mg/L |
| 出水 SS | ≤10mg/L | ≤10mg/L | ≤10mg/L | ≤10mg/L | ≤10mg/L |
| 濾盤骨架材質 | 增強工程塑料 | 增強工程塑料 | 增強工程塑料 | 增強工程塑料 | 增強工程塑料 |
| 濾布材質 | 纖維濾布 | 纖維濾布 | 纖維濾布 | 纖維濾布 | 纖維濾布 |
| 集水中心筒材質 | 不銹鋼 | 不銹鋼 | 不銹鋼 | 不銹鋼 | 不銹鋼 |
| 濾池箱體材質 | Concrete | Concrete | Concrete | Concrete | Concrete |
| 驅動功率 | 0.37 kW | 0.37 kW | 0.55 kW | 0.55 kW | 0.55 kW |
| 抽吸清洗泵功率 | 2.2 kW | 3.0 kW | 3.0 kW | 4.0 kW | 4.0 kW |
| 清洗流量 | 25m3/h | 25m3/h | 25m3/h | 25m3/h | 25m3/h |
| 清洗周期 | 0-360min | 0-360min | 0-360min | 0-360min | 0-360min |
| 清洗時間 | 2min/兩盤 | 2min/兩盤 | 2min/兩盤 | 2min/兩盤 | 2min/兩盤 |
| 水頭損失 | 250mm | 250mm | 300mm | 350mm | 350mm |
| 過濾形式 | 重力過濾 | 重力過濾 | 重力過濾 | 重力過濾 | 重力過濾 |
| 池體外形尺寸 | 8300×2200×2200 | 8700×2800×2200 | 8750×3200×2600 | 10100×3800×2700 | 10200×4300×2800 |
*.對于更大的流量、不同水質的選型,使用方式及其他技術參數請咨詢本公司,本公司有權對型號及參數如修改,不另行通知。





濾器的結構:
濾布轉盤微濾器主要由;濾池箱體、濾盤組、濾盤抽吸反洗機構、排泥管機構、濾盤集水中心筒、濾盤清洗驅動機構、自動控制器、抽吸清洗泵、自控閥。
1、濾池箱體:不銹鋼或碳鋼焊接,箱體結構緊湊,重量輕,占地面積小。可調節水位落差的大小。
2、濾組盤:每個濾盤由3-12個獨立的扇形濾盤分片組成一個圓濾盤,圓形濾盤中間空心的,兩個上圓面覆蓋濾布,濾盤兩側為過濾面,中間空心部為清水區。濾毛的深度儲存俘獲的粒子,減少正常運行時的水頭損失。每個濾布濾盤至少有5.2m2、13m2的有效浸沒過濾面積,且容易從裝置上取出。
3、濾盤抽吸反洗機構 :由反洗吸盤、管道、反洗吸盤支架部件等組成。用于濾布的抽吸清洗。
4、排泥機構 :由排泥吸口、管道、排泥吸口支架部件等組成。用于清理濾池底部的污泥。
5、濾盤集水中心筒:污水經濾盤后通過集水中心筒流入出水箱。多個濾盤安裝于集水中心筒上,清洗時驅動減速機帶動中心筒及濾盤旋轉。
6、濾盤驅動機構:由減速機、鏈輪、鏈條等組成,用來帶動集水中心筒和濾盤組的旋轉運動。
7、控制器:用于控制濾盤清洗、排泥的過程,使其運行自動化,并可就地設置反洗間隔時間、排泥間隔時間。
8、抽吸清洗泵、自控閥、管道組成濾盤清洗和排泥系統。
工藝運行方式
濾布轉盤微濾器的運行狀態包括:濾盤靜態過濾過程、負壓泵抽吸清洗過程、排泥過程。
(1)靜態過濾過程:污水重力流進入濾池,濾池中設有進水擋板穩流。污水通過濾盤兩側濾布進行過濾,過濾液通過集水中空筒收集,重力流通過溢流槽排出濾池。整個過程為連續。
(2)根據液位差逐漸升高。通過液位控制器檢測池內的水位高度。當該水位達到反洗設定值(高水位)時,控制器即可起動抽吸清洗泵和濾盤驅動減速機及自控閥,對濾盤進行抽吸反沖洗。反洗時,濾池連續過濾出水。
過濾期間,濾盤處于靜態,污水進入穩流槽后在進入濾池,污水中較大懸浮物在濾池中沉淀,污物在濾池底部沉積。
濾盤清洗期間,濾盤以2轉/分的速度旋轉。抽吸沖洗泵通過吸盤負壓抽吸濾布表面,吸除濾布上的積聚的污泥顆粒,濾盤內的水被同時抽吸,水自里向外對濾布進行反沖洗,并通清洗過管路排出反洗污水。抽洗面積僅占全濾盤面積的1%,反沖洗過程為間歇,通過液位和時間控制反清洗程序。
(3)排泥過程:濾布轉盤過濾器的濾盤下設有斗形池底,有利于池底污泥的收集。污泥池底沉積減少了濾布上的污泥量,可延長過濾時間,減少反洗水量。
控制說明
1、系統設有自動和手動兩種模式:
自動模式;操作人員根據污水情況設置好過濾時間和反洗時間,濾池即可按照控制器預先設定的程序(按時間、液位控制)進行工作;
手動方式僅在濾池調試或檢修時使用,實現自控閥、抽吸反洗泵、濾盤驅動減速機的手動控制。
2、控制器并設有強制功能,強制功能是濾池在運行狀態或停機狀態多能完成一次自動清洗程序。
3、低液位保護功能;濾池內水位在低液位時,控制器是無法啟動自動清洗程序和強制清洗程序。
4、高液位:當濾池水位到達設定上限位即自動啟動清洗程序,完成清洗程序后恢復至過濾狀態。
5、故障報警提示功能;自控閥的開、關不到位檢測,對泵和減速機的過載檢測,濾盤堵塞的報警功能。
產品應用
用于污水的深度處理,設置于常規活性污泥法、延時曝氣法、SBR系統、氧化溝系統、滴濾池系統、氧化塘系統二沉池之后。
用于冷卻循環水處理、廢水的深度處理后回用。作為冷卻水、循環水過濾后回用:進水水質SS≤80mg/L以下,出水水質SS≤20mg/L。
用于以下領域: ①去除總懸浮固體 ②結合投加藥劑可去除磷 ③可去除重金屬等。
用于過濾活性泥終沉池出水,設計水質:進水SS:40mg/L(最高可承受80-100mg/L),出水SS≤10mg/L,濁度≤2 NTU。
控制系統
采用工業單片PLC自動控制,中文或英文顯示。可根據壓差或定時控制過濾器自動清洗,并可手動、強制清洗。現場可設定過濾時間、清洗時間。運行信號、清洗信號、故障信號輸出及485通訊接口。